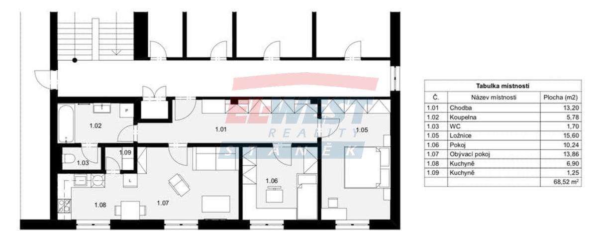
Nabízíme k pronájmu zděný, modernizovaný byt 3+kk (rekonstrukce v roce 2019) v klidném zděném domě na okraji města Sušice. Byt o celkové ploše 68,5 m² se nachází ve 3. NP a jeho největší předností je výborné dispoziční řešení se všemi pokoji neprůchozími, což zajišťuje maximální soukromí pro všechny členy domácnosti.
Vnitřní dispozice: prostorná obývací kuchyně ( 20.76 m²) s moderní linkou a elektrickým sporákem propojená s obývacím prostorem, spíž 1,25m2. Dvě samostatné ložnice (15,6 m² a 10,2 m²). Koupelna 5,79m2 s vanou, umyvadlem, topným žebříkem, připojením k pračce a samostatné WC. K bytu dále náleží komora/sklep v přízemí domu.
Byt se pronajímá nezařízený, připravený k vybavení podle vašeho vkusu.
Vytápění je řešeno centrálně (ústředním topením kotlem na tuhá paliva). El. energie s odečtovými měřiči. Parkování je bezproblémové přímo u domu.
Měsíční platby spojené s užíváním bytu: 10.000,-Kč + zálohy na energie (elektřina odečtová, vodné, stočné, teplo cca 5.000,-Kč/2os.), internet jako pevná složka. Vratná kauce 20.000,-Kč.
Dům má strategickou polohu – jen 150 m od řeky, ideální na procházky, koupání s nově vybudovaným kempem s občerstvením v letní sezoně a 200 m od nádraží i autobusových spojů. Veškerá občanská vybavenost je v centru Sušice.
Volné od 1.5.2026.
| Technická specifikace | |
|---|---|
| Plyn | není |
| Topení | ÚT/ kotlem na TP centrální |
| Voda | obecní vodovod |
| Elektřina | 230/400V |
| Odpad | kanalizace |
| Sociální zařízení | ano |
| Garáž | není/pohodlné parkování před domem |
| Sklep | |
| Zahrada | není |
| PENB | G |
| Ostatní | |
novinkablokace
Pronájem rodinného domu/chalupy se zahradou na Šumavě
novinka
Pronájem bytu 3+kk přímo v centru Sušice
Pronájem skladového prostoru 40 m2 v Sušici
Naše webové stránky používají soubory cookies, které nám pomáhají zjistit, jak jsou stránky využívány. Abychom cookies mohli používat, musíte nám to povolit.
Kliknutím na tlačítko "OK, souhlasím" udělujete souhlas s použitím všech cookies.
Nastavení souborů cookies
Cookies jsou malé soubory, které webové stránky (i ty naše) ukládají ve Vašem webovém prohlížeči. Obsahy těchto souborů jsou vyměňovány mezi Vaším prohlížečem a našimi servery, případně se servery našich partnerů. Některé cookies potřebujeme, abychom webová stránka mohla správně fungovat, některé potřebujeme k marketingové a statistické analytice. Zde si můžete nastavit, které cookies budeme moci používat.